BeF Aquatic WH 80

3,859.00

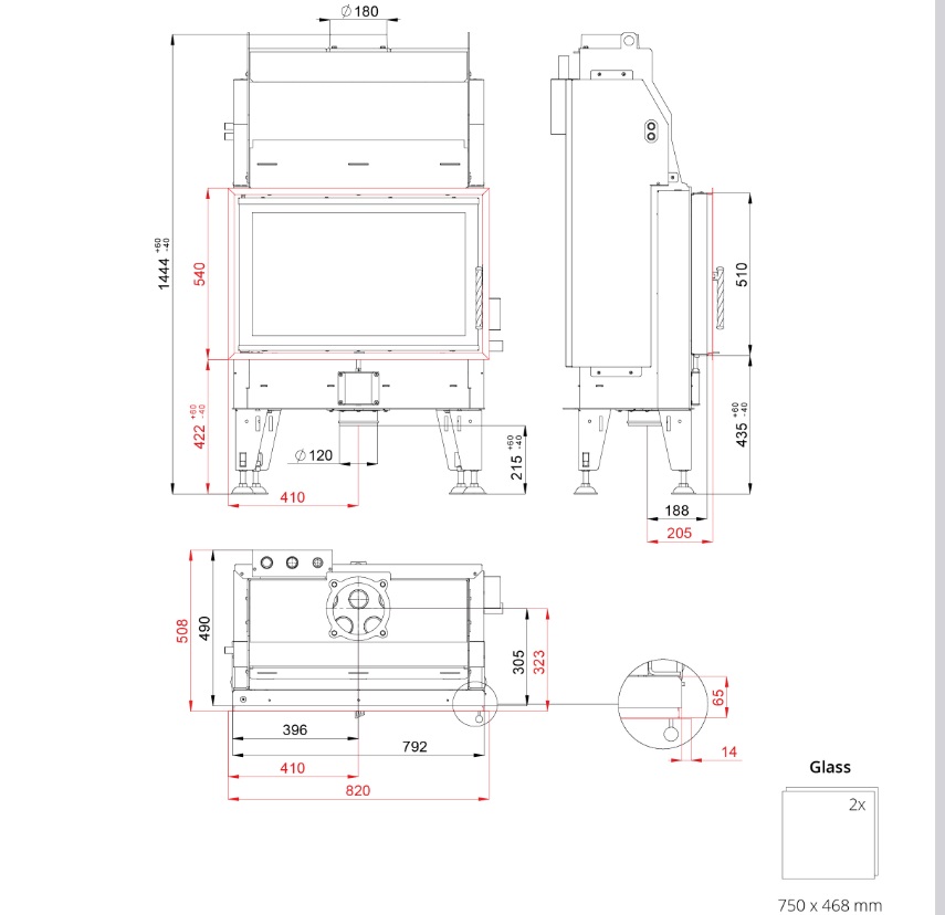
DETALII TEHNICE:

  • Putere termică nominală 14,5 kW
  • Putere de căldură pentru schimbătorul de apă 10 kW
  • Eficienţă 84 %
  • Diametrul coșului de fum 180 mm
  • Dimensiune 792x1444x490 mm
  • Greutate 272 kg

 SCHITA TEHNICA

Descriere

Datorita focarului fabricat din materialul special cu acumulare de caldura Carcon, care a fost dezvoltat special pentru BeF HOM, se atinge o eficienta si o puritate ridicata arderii, plus o vedere confortabila a flacarilor.

  •           Usa clasica cu deschidere laterala prin maner
  •           Geam dintr-o singura bucata
  •           Cuptorul  este captusit cu carcon
  •           Control simplu al arderii printr-un singur element de reglare

 

 

TOP