Descriere
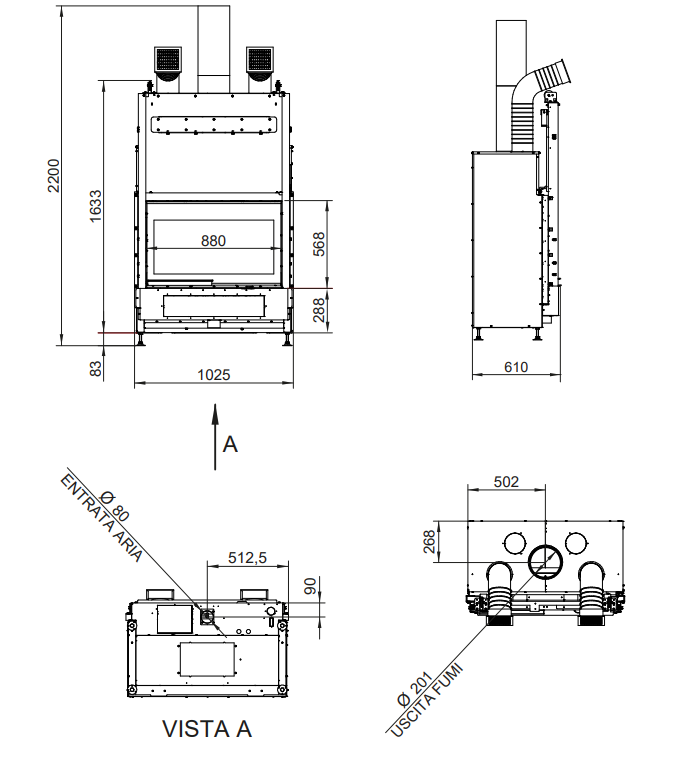
Focarul pe lemne Palazzetti Monoblocco WTX 90F N19 air este o soluție performantă pentru încălzirea spațiilor mari, oferind eficiență ridicată și un design modern. Camera de ardere este realizată din Thermofix®, material refractar avansat care optimizează combustia și contribuie la acumularea și distribuția uniformă a căldurii. Ușa culisantă robustă glisează ușor și asigură acces facil, iar sticla poate fi înclinată până la 40° pentru curățare rapidă. Focarul funcționează prin convecție naturală și radiație, iar varianta N permite integrarea unui kit opțional de ventilație pentru distribuția aerului cald. Sistemul by-pass evacuează gazele arse la deschiderea ușii, prevenind refularea fumului în încăpere. Controlul precis al arderii se realizează prin reglarea aerului primar și secundar, iar admisia de aer din exterior îl face potrivit pentru locuințe moderne bine izolate. Este echipat cu două ieșiri reglabile pentru distribuția aerului cald și cu un sertar pentru cenusa ușor de întreținut.

Focare modulare
Focare cu 2 geamuri
Focare cu 3 geamuri
Focare cu 4 geamuri
Focare cu geam prismatic
Focare cu geam semirotund
Focare tip tunel
Focare deschise
Focare metalice
Focare electrice
Focare bioetanol
Focare cu geam drept
Focare de exterior
Focare peleti
Focare ventilate
Focare-centrala cu kit termic premontat
Focare centrala fara kit termic premontat




