Lemn de esenta tare uscat sub forma de bustean crapat
230C
250Kg
Negru
5ani
– Otel refractar de inalta calitate cu o compozitie ridicata de carbon pentru o rezistenta ridicata la temperaturi inalte
– Captusala interioara TERMOTEC, material ce acumuleaza si ridica temperatura in interiorul focarului pentru o ardere mai eficienta
– sticla ceramica speciala care rezista fara probleme la temperaturi foarte ridicate
– sticla decorativa grafitata (contur negru) care ofera un aspect modern si elegant
– Se instaleaza in circuit inchis si necesita obligatoriu: – presiune maxima de lucru de 2 bar. – presiune maxima de incarcare la rece: 1-1.2 bar. – 2x supape de presiune instalate de max. 2,5 bar pe focar. – 2x aerisitoare pe focar. – supapa termica de 97 grade pe serpentina de racire – serpentina de racire se monteaza obligatoriu – vas de expansiune min. 10% din volumul de apa din instalatie. – vana de amestec (cu trei cai) sau bypass.
– Se instaleaza in circuit deschid si necesita obligatoriu: – vas expansiune deschis cu plutitor metalic.
– Se instaleaza in circuit deschid+inchis (cel mai sigur sistem) si necesita obligatoriu: – kit hidraulic cu pompe si schimbator in placi (vezi optiuni suplimentare) – vas expansiune deschis cu plutitor metalic.
– Prevazut cu tevi, in conul focarului, pentru recuperarea suplimentara a caldurii din gazele de evacuare.
– Ardere pe vatra pentru reziduri de cenusa cat mai scazute.
– Picioare reglabile pentru ajustare, pozitionare si fixare optima.
– Deflector pentru extinderea traseului fumului si imbunatatirea schimbului termic
– Necesita conectarea aerului de admisie extern
– Dotat cu admisie din exterior si interior
– Dotat cu serpentina de siguranta, pentru racirea focarului in cazul supraincalzirii.
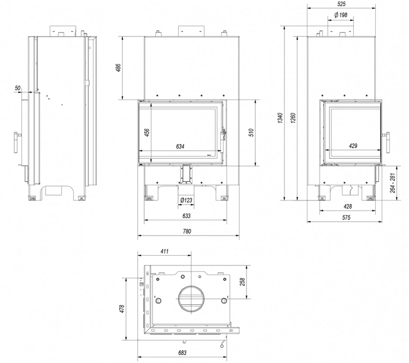
Termosemineu din gama PRO, model samotat la interior cu randament crescut, autocuratare pe sticla si design modern cu sticla termorezistenta grafitata. Bazin de apa generos , ce se racordeaza la calorifere sau incalzire in pardoseala cu puffer si este prevazut cu tevi pentru recuperare caldura.
– Primi 5 metri se recomanda sa nu fie din PPR sau material compozit.
– Puffer de acumulare, pentru un randament mai bun (se dimensioneaza individual dupa marimea locuintei)
– Racordarea tur/retur se face pe diagonala.
– Mentinerea diametrului de racordare de pe focar pana la primul distribuitor.
– Controler electronic pentru admisia de aer si pompe
– A nu se testa la presiuni mai mari de 2 bar.
Pentru imbunatatirea experientei utilizatorului, acest website foloseste cookie-uri. Vom presupune ca esti de acord cu acest lucru, dar poti refuza daca doresti. Setari cookieAccepta
Intainte de a continua navigarea, te rugam sa consulti politica de confidentialitate si politica de utilizare cookies.
Politica de confidentialitate si utilizare cookie-uri
Sumar politica cookie
Acest site utilizează module cookie pentru a vă îmbunătăți experiența în timp ce navigați pe site. Din aceste cookie-uri, cookie-urile clasificate ca strict necesare sunt stocate în browser-ul dumneavoastra, deoarece sunt esențiale pentru funcțiile de bază ale site-ului. De asemenea, folosim module cookie statistice care ne ajută să analizăm și să înțelegem cum utilizați acest site web. Aceste cookie-uri vor fi stocate în browser-ul dumneavoastra numai cu acordul dumneavoastra. De asemenea, aveți opțiunea de a renunța la aceste cookie-uri. Renunțarea la unele dintre aceste cookie-uri poate avea un efect negativ asupra experienței dumneavoastra de navigare.
Aceste cookies sunt necesare pentru functionarea site-ului web si nu pot fi dezactivate in sistemele noastre. In browser-ul pe care il folosesti, poti seta blocarea sau primirea unui avertisment in legatura cu aceste cookies, dar in acest caz, anumite parti ale site-ului pot sa nu functioneze.