Descriere
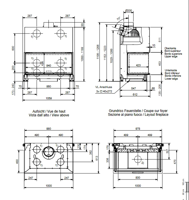
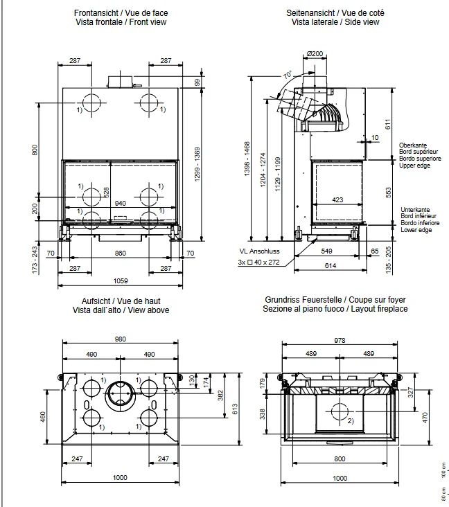
Focar premium elvețian cu geam pe trei laturi, conceput pentru o vizualizare panoramică spectaculoasă asupra focului și integrare elegantă în spații moderne. Dimensiunea generoasă a suprafeței vitrate pune în valoare flacăra din orice unghi, transformând șemineul într-un element central al încăperii. Camera de ardere optimizată și alimentarea precisă cu aer asigură o combustie eficientă, cu emisii reduse și randament ridicat. Sistemul de glisare este extrem de lin și silențios, iar fluxul de aer menține sticla curată pentru o perioadă îndelungată. Construcția este gândită pentru durabilitate pe termen lung și poate fi integrată în sisteme de acumulare, oferind căldură radiantă timp îndelungat și eficiență energetică sporită.

Focare modulare
Focare cu 2 geamuri
Focare cu 3 geamuri
Focare cu 4 geamuri
Focare cu geam prismatic
Focare cu geam semirotund
Focare tip tunel
Focare deschise
Focare metalice
Focare electrice
Focare bioetanol
Focare cu geam drept
Focare de exterior
Focare peleti
Focare ventilate
Focare-centrala cu kit termic premontat
Focare centrala fara kit termic premontat








