Descriere
AVANTAJE PREMIUM LINE
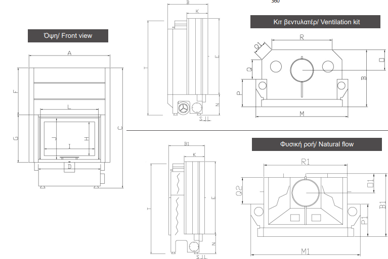
LAZARU FLAT 150/47 suprafata metalica termica mare ● recipient de capacitate mare pentru preincalzirea aerului ca urmare au o mare autonomie in preincalzirea oxigenului ● accepta o cantitate mare de aer pe care o transforma in caldura, rezultand o curatare mai buna a sticlei din fantele perdelei de aer
LAZARU FLAT 150/47 au schimbătoare de căldură mari pentru a transforma aerul rece în aer cald ● au două derivații de evacuare + clapeta totală de trei ● acces la toate părțile mecanice și electrice ale focarului prin deschideri de vizitare pentru orice deteriorări care pot apărea de-a lungul anilor și pentru a efectua operațiuni fără a fi necesar strică orice decor care a fost făcut în afara vatrăi.
Producator LAZARU
Pentru mai multe focare similare FOCARE CU GEAM DREPT

Focare modulare
Focare cu 2 geamuri
Focare cu 3 geamuri
Focare cu 4 geamuri
Focare cu geam prismatic
Focare cu geam semirotund
Focare tip tunel
Focare deschise
Focare metalice
Focare electrice
Focare bioetanol
Focare cu geam drept
Focare de exterior
Focare peleti
Focare ventilate
Focare-centrala cu kit termic premontat
Focare centrala fara kit termic premontat







